Sök

Beg Modulbyggnad/ Kontorsmodul ca 182kvm

Moduluppställning på ca 182kvm för omgående leverans !
Objekt B25034 Kategorier , , Etiketter ,

Om objektet

Extra information

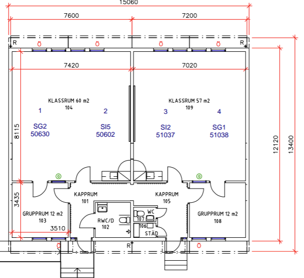
Begagnade moduler på ca 182kvm som tidigare har varit en skola.
Uppställningen är också lämpliga till annat ändamål som  kontor, lager eller bostad.

Byggnaden består av 4 stycken  moduler med följande innehåll.
– 2 stora salar.
– 2 stycken grupprum.
– Kapprum.
– 1st toalett.
– Tidigare Rwc med wc samt dusch.
– Städförråd med utslagsverk

Byggnaden går att anpassa efter just era önskemål men går att sätta i drift direkt utan större ombyggnader eller reparationer .

Vi på Allabodar ombesörjer gärna frakt samt montage av denna uppställningen.

Byggnaden finns på vår depå i Billeberga för visning!

Kontakta gärna oss för mer information!

Summering

Ytterligare information

Dimensioner 12112 × 15060 × 2700 mm

Dokument

Vi kan hjälpa till med följande.

– Finansieringslösningar/leasing på alla våra objekt.

-Transport till hela Norden

-Ta fram er egna desing och lösning.

Mer information om finansiering hittar du här

Intresseanmälan

Fyll i intresseanmälan genom att klicka på knappen nedan så tar vi kontakt med dig så snart vi kan.

Shape

Relaterade objekt

Se resten av våra bodar

Bostadsmodul på hela 27kvm som byggs enligt dina önskemål!
Begagnad kontorsbod med två kontorsytor, i mycket fint och fräscht skick!
Nytillverkad kontorsbod på 18kvm för omgående leverans!
Moduluppställning på ca 182kvm för omgående leverans !

Mark/Förarbete

Det finns en del du behöver fundera över innan du tar emot leveransen av din nya modul. Vi hjälper dig givetvis att bena ner vad som behöver göras och införskaffas. Att göra rätt från början sparar dig både pengar och förlänger enhetens livs längd. 

Montering

Man måste inte vara sertifierad montör för att montera våra enheter.

MEN för att dina garantier skall gälla måste allt vara korrekt utfört. Om du känner montaget är bortom din kompetens har vi fleratalet partners runt om i Norden som dagligen jobbar med denna typ av monteringar.

Bygglov

Snårigt, svårt och framför allt tidskrävande. Ja bygglov behövs ju inte alltid när du skall sätta upp en bod/modul. Men hur vet du det?

Get A Free Consultation
And Estimate

Beg Modulbyggnad/ Kontorsmodul ca 182kvm

Skicka intresseanmälan

Fält markerade med en * är obligatoriskt