Sök

Beg bod / Kontors uppställning ca 165kvm FRI FRAKT!

Bod uppställning på ca 165kvm för snabb leverans! FRI FRAKT INOM SKÅNE!
Objekt B25015 Kategorier , , Etikett

Om objektet

Extra information

Beg Bod uppställning med stora möjlighet och går att anpassas efter önskemål.

Vi har nu ett erbjudande med LRF där vi erbjuder FRI FRAKT på denna uppställningen inom SKÅNE.
( lossnings tiden tillkommer)

Byggnaden är anpassad i dagsläget till förra ägarens behov men går att anpassa och att ta bort alla omklädning skåp och ha istället kontorsplatser, konferensrum och mycket mer.

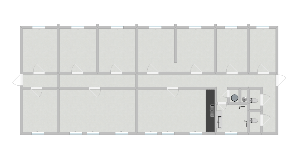
Uppställningen består utav 7st beg bodar där varje bod är på ca 24kvm.

Uppställningen innehåller följande:

  • 6-8 kontorsplatser med olika storlekar.
  • Konferensrum
  • Kök
  • 2st varmvattenberedare
  • Omklädning skåp
  •  2st duschar
  • 2st toaletter
  • 2st luftvärmepump

Uppställningen målas om in och utvändigt i valfri kulör innan leverans.

Levereras funktionstestad och klar för drift.

Allabodar.se hjälper vägen till med transport, montage samt finansiering.

Ritningen har vissa avvikelser, Se bilder och film på objekt för att se kompletta planlösningen.

Summering

Ytterligare information

Dimensioner 8450 × 20300 × 2900 mm

Dokument

Vi kan hjälpa till med följande.

– Finansieringslösningar/leasing på alla våra objekt.

-Transport till hela Norden

-Ta fram er egna desing och lösning.

Mer information om finansiering hittar du här

Intresseanmälan

Fyll i intresseanmälan genom att klicka på knappen nedan så tar vi kontakt med dig så snart vi kan.

Shape

Relaterade objekt

Se resten av våra bodar

Bostadsmodul på hela 27kvm som byggs enligt dina önskemål!
Begagnad kontorsbod med två kontorsytor, i mycket fint och fräscht skick!
Nytillverkad kontorsbod på 18kvm för omgående leverans!
Moduluppställning på ca 182kvm för omgående leverans !

Mark/Förarbete

Det finns en del du behöver fundera över innan du tar emot leveransen av din nya modul. Vi hjälper dig givetvis att bena ner vad som behöver göras och införskaffas. Att göra rätt från början sparar dig både pengar och förlänger enhetens livs längd. 

Montering

Man måste inte vara sertifierad montör för att montera våra enheter.

MEN för att dina garantier skall gälla måste allt vara korrekt utfört. Om du känner montaget är bortom din kompetens har vi fleratalet partners runt om i Norden som dagligen jobbar med denna typ av monteringar.

Bygglov

Snårigt, svårt och framför allt tidskrävande. Ja bygglov behövs ju inte alltid när du skall sätta upp en bod/modul. Men hur vet du det?

Get A Free Consultation
And Estimate

Beg bod / Kontors uppställning ca 165kvm FRI FRAKT!

Skicka intresseanmälan

Fält markerade med en * är obligatoriskt